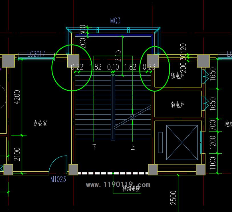
楼梯间结构专业疏忽,柱子突出休息平台碍事吗,满足两股人流有富裕,请问影响消防验收吗?
创始人
2025-12-01 11:02:55

另外本次设计的楼梯井道是100mm,按照先行规范是150mm,虽然不是强条,目前主体已经施工完毕,以上问题会影响后期验收吗,该楼的性质是办公楼,如果影响有没有什么补救措施,谢谢不吝赐教


相关内容

热门资讯

新旧消防泵年限如何应用 消防泵新国标13.1 规定产品使用年限为20年,那么原有在用的消防泵是否适用该标准,如不适用,那么多...
KTV位于二层建筑的二层,一二... KTV位于二层建筑的二层,一二层建筑面积都为843.06平方米,KTV的包间面积均不大于50平方米,...
消防维保记录咨询 消防维保单位在检查测试中发现,安装的喷淋系统试试报警阀组旁的压力开关无启泵线,应为4根线但实际只有2...
喷淋头离固定家具的距离 请教网站的老师们,在二次装修中,酒店客房里面,墙边做了衣柜,请问喷淋头离墙的距离不大于1.8米是指离...
正压送风机是否需要做连锁停。 正压送风阀,是否需要做连锁停风机?如果需要做是否参考排烟风机的做法,在风机入口处或者穿越墙体等位置?...
关于疏散楼梯间的装修材料 想问大神们一个问题,疏散楼梯间墙面装修材料要a级,那装修材料的粘合剂是不是也要求是a级呢?
类住宅养老产品疏散问题 养老建筑一个生活单元包含居室、卫生间、厨房等成套布置,建筑面积一般都会超过50平米,防火规范要求疏散...
应急指示灯新国标应急状态不闪烁... 根据2025年5月1日起实施的《消防应急照明和疏散指示系统》新国标,消防应急疏散标志灯具的核心功能是...
喷淋管道保温问题咨询 喷淋管需要要保温,保温材料只用保温棉,不采用外部保温铝皮可以吗?
防烟楼梯间 防烟楼梯间设置在什么场景下(民用建筑)?
整车仓库的火灾危险性 关于汽车生产厂房的成品车辆存放仓房的火灾危险性如何确定?
各个位置的280度防火阀与排烟... 烟规,要求所有的280防火阀都与排烟风机连锁,火规只说风机入口处,到底以谁为准?
商场里面的小店地面用了B2级的... 《中华人民共和国消防法》第二十六条人员密集场所室内装修、装饰,应当按照消防技术标准的要求,使用不燃、...
《防火通规》9.1.3条 根据《防火通规》9.1.3条,排除有燃烧、爆炸危险性物质的风管,不应穿越人员聚集场所,若穿越此区域的...
民用建筑内的小型仓库,防火门开... 民用建筑内的小型仓库,防火门开启方向,建规6.4.11能适用吗?
气体灭火法兰和法兰垫片进场检测... GB50263中对于气体灭火管道的法兰和法兰垫片进场检验的条款不是很具体,而法兰和法兰垫片没有强制性...
工业用房是否可以用作医疗用房? 《深圳经济特区医疗条例》 第三十二条 商业、办公、工业等用房符合医疗机构设置标准和医疗执业要求的,...
纺丝车间屋面丙类车间满足纺织工... 纺织工程设计防火规范6.1.6 建筑屋顶上局部凸出屋面的小间,当同时满足以下各项条件时可不计入建筑高...
“应急照明疏散指示系统中集中电... 应急照明疏散指示系统中集中电源及应急照明配电箱的主电源应该接消防电源还是非消防电源