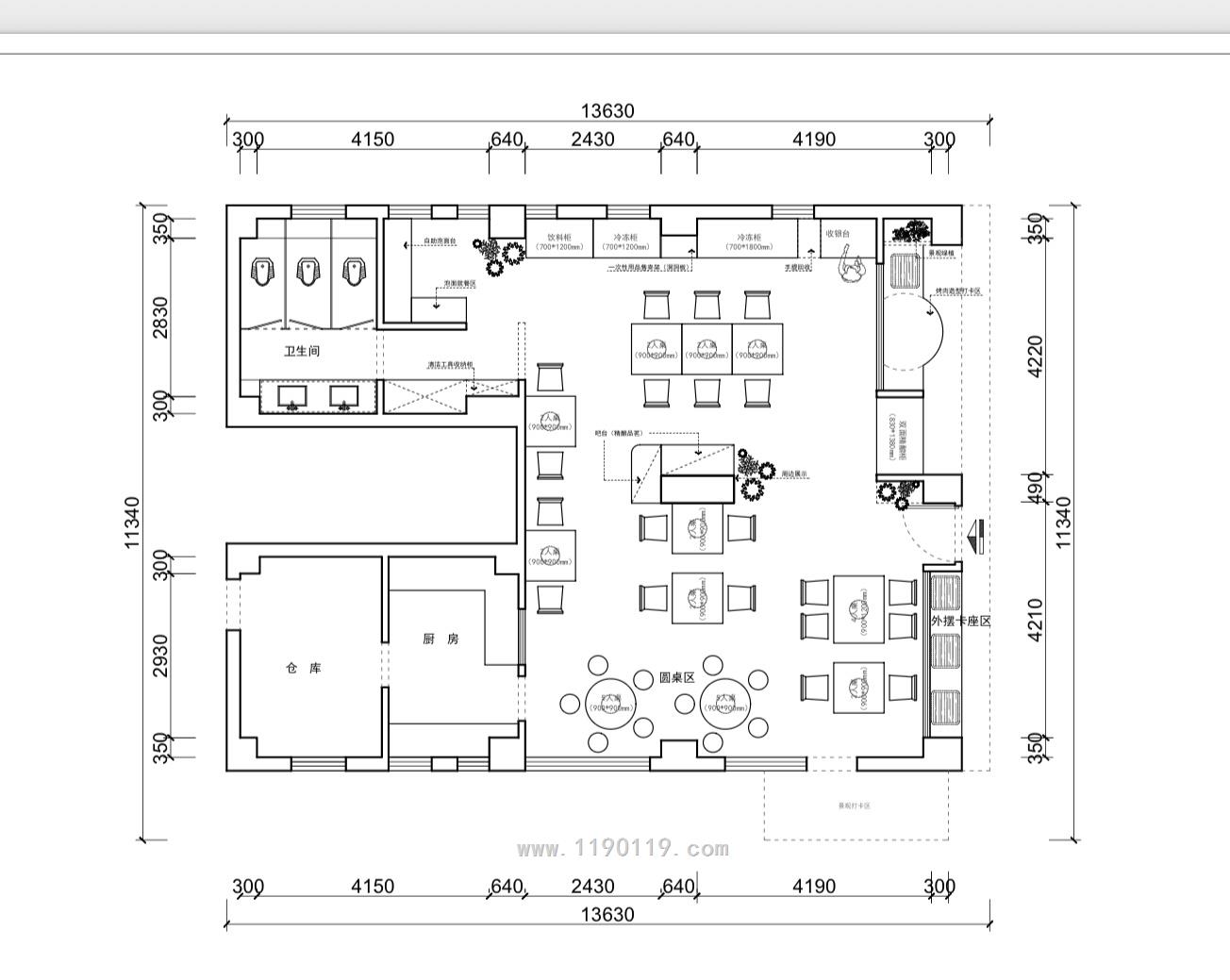
商铺1百多平方?要不要找设计院画消防图
创始人
2025-11-04 14:01:59


相关内容

热门资讯

甲类仓库的建筑面积 仓库内设置自动灭火系统时,除冷库的防火分区外,每座仓库的最大允许占地面积和每个防火分区的最大允许建筑...
建筑面积定义 1 位于两个安全出口之间或袋形走道两侧的房间,对于托儿所、幼儿园、老年人照料设施,建筑面积不大于50...
泡沫灭火器 请问手持或手推式泡沫灭火器是不是淘汰了,如没有淘汰,相关灭火器的灭火剂有没有标注成份参数,如抗溶性、...
跟大家请教一个问题,酒店客房内... 酒店客房内是否需要设置方向标志灯具
消防端子箱/模块箱需要接地? 需要做保护接地连接吗?
多层1层商铺疏散问题 一个多层的建筑,每层面积大概为1500平,且1层和二层以上不共用疏散楼梯,一层的店面如果不大于200...
执业数量数目 一名一消可以执业多少个项目?
位于位于两个安全出口之间的房间... 位于位于两个安全出口之间的房间,由房间内任一点至疏散门的直线距离不大于15m、建筑面积不大于200m...
地铁火灾联动时切不切自动扶梯电... 请问地铁火灾联动时切不切自动扶梯的电源?
消防水泵出水管上设置减压型倒流... 根据消防给水及消火栓系统技术规范 GB50974-2014 6.2.3 规定采用消防水泵串联分区供水...
物流仓库排烟风管下喷安装规范要... 物流仓库排烟风管下喷安装规范要灭
地库入口处30米范围内做保温的... 在设计图纸中,提到了地库入口处要做保温,就保温的区域,我想问两个问题:1、30米范围的起点和终点如何...
请问我一个多层商业项目,每层建... 请问我一个多层商业项目,每层建筑面积为1500平左右,分隔成多个不大于200平的小商铺,请问我一个小...
有爆炸危险的甲类厂房或库房在工... 有爆炸危险的甲类厂房或库房在工艺不怕水的前提下,屋面雨水管是否可以做内天沟内排,若内排时材质和措施是...
楼梯梯井是否必须设置 专家您好,1、请问楼梯梯井没条件做时是否可以不设置? 2、若楼梯服务的功能空间设有消火栓,是不是梯井...
喷淋泵是否采用一级负荷电源? 某栋2800㎡的地上三层(地下一层)商业楼改为娱乐城,其室内外消火栓系统接自市政(稳高压系统),室外...
电影院补风问题 各位大神好,我想请教一下,几个电影院是一个防火分区,每个电影院面积均小于500平方米,层高6.8米,...
系统检测问题 实际操作中,一些集中的网络机房内设置的气体灭火系统,验收时模拟喷放试验如何做?还是只是做模拟启动试验...
消控室面积107m2,应该设置... 消控室面积107m2,应该设置几樘防火门?